Appartement élégant au coeur de Eixample
60 mots : Découvrez cet appartement moderniste de 137 m², situé rue Mallorca, dans un immeuble emblématique de 1910 au cœur de l'Eixample. Élégance d'époque, lumière naturelle et éléments originaux s'y conjuguent. Possibilité de rénovation sur mesure par l'un des meilleurs développeurs de Barcelone, avec finitions haut de gamme livrées en 5 mois. Un bijou architectural à personnaliser.
Big descrip :
Cet appartement moderniste se trouve rue Mallorca, une adresse prestigieuse au cœur de l'Eixample à Barcelone. Situé dans un immeuble emblématique datant de 1910, il incarne le charme et l'élégance de l'architecture de l'époque, tout en offrant un cadre de vie central et vibrant, à proximité immédiate des commerces, restaurants et transports.
Situé à l'étage principal d'un immeuble avec ascenseur, cet appartement se distingue par sa luminosité et son volume, mis en valeur par la présence de deux galeries.
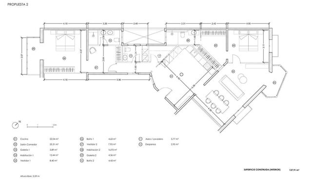
Avec une superficie construite de 137 m², ce bien conserve de magnifiques éléments d'origine, ces détails d'exception reflètent l'authenticité du style moderniste catalan et confèrent à l'ensemble une atmosphère chaleureuse et unique.
L'appartement est proposé dans son état actuel, cependant vous avez la possibilité de le transformer entièrement grâce à une rénovation assurée par l'un des meilleurs développeurs de Barcelone. Réputé pour la qualité exceptionnelle de ses projets, il propose des finitions haut de gamme, un accompagnement personnalisé à chaque étape et une exécution impeccable. Le coût total, incluant les travaux, est de 1.215.000 €, avec un délai de livraison garanti en cinq mois maximum, avec clause de pénalité journalière en cas de dépassement.
La distribution intérieure peut être entièrement repensée avec l'acheteur pour créer une résidence unique, adaptée à vos envies.
Une opportunité rare de vivre dans un joyau moderniste sublimé par un savoir-faire reconnu, au cœur de l'un des quartiers les plus recherchés de Barcelone.
Contactez-nous dès maintenant !
Caractéristiques de la propriété
-
A (92-100)
-
B (81-91)
-
C (69-80)
-
D (55-68)
-
E (39-54)
-
F (21-38)
-
G (1-20)
à propos de Eixample Derecha
L'Eixample Derecha ou "Eixample Dreta" désigne le côté droit de la zone riche et magnifiquement structuré de Barcelone connue simplement sous le nom de Ensanche ou Eixample. Il s'agit d'un nom qui signifie que cette zone de Barcelone a été créee pour que la vieille ville de Barcelone, Ciutat Vella, puisse s'étendre. Avec l'Eixample Izquierdo, l'immobilier d'Eixample Derecho est indéniablement l'immobilier le plus recherché de Barcelone.
Des caractéristiques telles que des plafonds magnifiques et des grands volets en bois sont courants dans la plupart des propriétés de l’Eixample Derecho. Le système de grille soigneusement planifié a été mis en pratique au milieu du 19ème siècle par l’architecte Idelfonso Cerdá, ce qui a permis de créer des espaces ouverts, des bâtiments bas et de planter beaucoup, beaucoup d’arbres. L’Eixample Derecho abrite les créations architecturales les plus célèbres de Barcelone. La Casa Batlló de Gaudi, La Pedrera ou « Casa Milá » et La Sagrada Familia sont sans aucun doute les plus célèbres, mais ce n’est pas tout, en effet le quartier est infiltré de merveilleux exemples d’architecture moderniste.
Néanmoins, ce n’est pas seulement l’immobilier de l’Eixample Derecho qui rend ce quartier si attrayant; on y trouve de nombreux restaurants, bars et clubs exquis. En vivant ici, vous êtes complètement immergé dans une belle architecture, des bars et des boutiques haut de gamme avec peu de circulation!
Si vous recherchez un bien immobilier à vendre dans cette merveilleuse partie de Barcelone, veuillez contacter nos experts immobiliers de l’Eixample Derecho ici à Urbane Real Estate Barcelona et nous serons heureux de vous aider !









